Exklusives Wohnen über den Dächern der Stadt – HeimatGlück

€ 585.900

Beschreibung

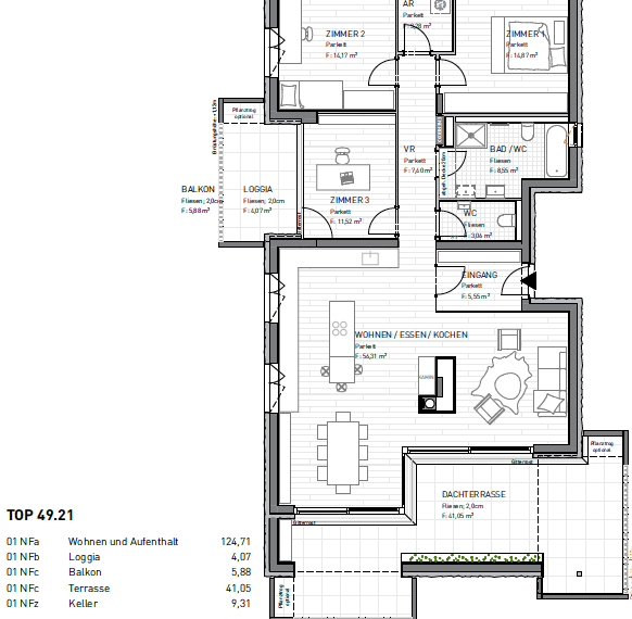
Dieses knapp 125m2 große Penthouse beeindruckt mit einer optimalen Raumaufteilung, die jeden Quadratmeter optimal nutzt. Die großzügige Fläche von über 56m2 umfasst den Wohn und Essbereich, welcher einen geselligen Treffpunkt für die ganze Familie bietet. Hier finden Sie das Highlight der Wohnung, die 41m2 große, südlich ausgerichtete Dachterrasse, welche Ihnen den ganzen Tag über viel Licht und Wärme garantiert. Ein Hoher Wohnkomfort wird Ihnen durch die drei geräumigen Schlafzimmer geboten, welche einen optimalen Rückzugsort erschaffen. Aus dem dritten Schlafzimmer hat man den direkten Zugang zum knapp 10m2 großen Balkon.

Neben Ihrem modernen Sanitärbereich befindet sich noch ein separates Gäste-WC, welches zusätzlichen Komfort im Alltag bietet. Um das Wohnerlebnis zu maximieren, finden Sie im Eingangsbereich ausreichend Platz für Ihre Garderobe. Am Ende des geräumigen Vorraums befindet sich noch ein Abstellraum, wo man über extra Stauraum verfügt. Zudem steht Ihnen ein 9,31m2 Keller zur Verfügung.

Weiters kann ein Tiefgaragenplatz, je nach Größe zwischen 20.600 – 25.000€, erworben werden.

„HeimatGlück“ ist die Antwort auf Wohnbedürfnisse der modernen Gesellschaft. Ein lebendiges Miteinander, bedarfsorientiertes Bauen, umweltfreundliche Mobilität und die besondere Grünraumgestaltung sind innovativ und zeitgemäß. Einfach Smart.

Die Wohnanlage setzt auf smarte Mobilität, um einen nachhaltigen Lebensstil zu fördern. Ein zentraler Mobilitätsknoten im Süden umfasst neben Fahrradabstellplätzen und Leihfahrrädern (nextbike), auch E-Car- und E-Bike-Sharing mit Trolleysystem, E-Lademöglichkeiten und Mobilitätsberatung. Ein gut ausgebautes Busliniennetz ermöglicht Ihnen zudem eine bequeme Anbindung ans Stadtzentrum. Hier wird Nachhaltigkeit großgeschrieben. Auch stehen vor Ort ausreichend Parkplätze für Besucher*innen zur Verfügung.

Lage

Die Lage des Gesamtentwicklungskonzepts HiHarbach besticht durch zahlreiche Vorteile. Trotz der guten Anbindung an den Südring und die Völkermarkterstraße, sowie die Autobahnauffahrt Ost, die Sie in wenigen Autominuten erreichen, genießen Sie aufgrund der umliegenden 30er – Zone und den vielen Freiflächen mit großzügiger Bepflanzung, eine idyllische Ruhelage mit unverbaubaren Blick auf die südlichen Bergketten Kärntens.

Kindergarten, Schulen, Ärzte, Nahversorger, oder der sich nebenan befindende Bauernladen von Frau Rupp, der mit wunderbaren regionalen Köstlichkeiten ausgestattet ist, komplementieren das Wohnangebot.

Das Juwel Kärntens, der Wörthersee, befindet sich nur 15 Autominuten von Ihrem Zuhause entfernt.

Sonstiges

Die Wohnanlage „HeimatGlück“ befindet sich bereits in Bau. Die Fertigstellung der Gesamtanlage ist spätestens im ersten Quartal 2027 geplant (für die exakte Fertigstellung kann keine Garantie übernommen werden).

Bei den Projektabbildungen (Broschüren, Werbeanzeigen, etc.) handelt es sich lediglich um symbolische Darstellungen. Für mögliche Abweichungen zwischen den Symbolfotos, Darstellungen und den tatsächlichen Gegebenheiten in der Natur wird deshalb keine Haftung übernommen. Vorbehaltlich Fehler und Irrtümer.

Die Möblierungen in den Grundrissen dienen als Orientierungshilfe und sind nicht im Kaufpreis inkludiert.

Eine ausführliche Bau- und Ausstattungsbeschreibung erhalten Sie gerne auf Anfrage.

Lage

Harbacher Str. 49, 9020 Klagenfurt am Wörthersee, Österreich

Teile die Wohnung mit deinen Freunden

Share